计算器
计算器
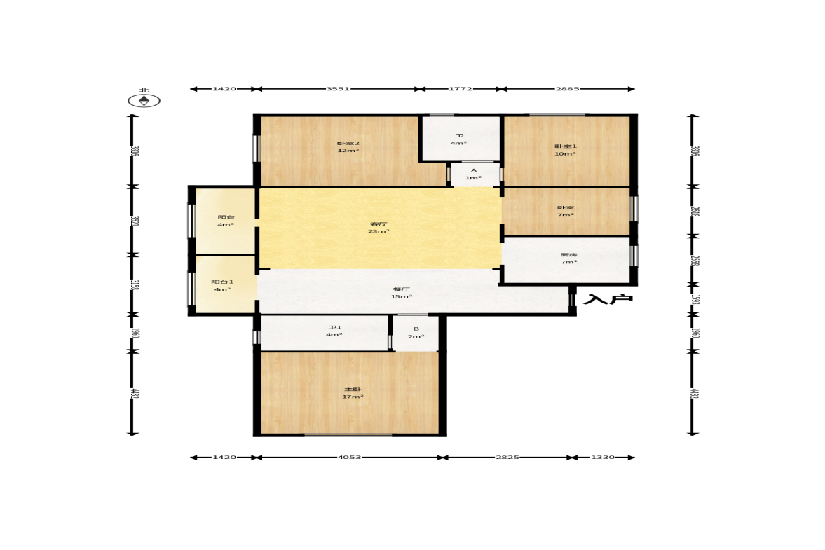
- 户型4室2厅2卫
- 楼层(共25层) 中层
- 面积约129.32平米
- 装修 已装修
- 朝向南
- 建筑年代 2013年
72万 7425元/㎡
70万 8362元/㎡
71.56万 5599元/㎡
70万 8362元/㎡
70万 7540元/㎡
69.8万 7960元/㎡
68万 6089元/㎡
69万 7900元/㎡
收藏该房源
分享该房源
计算器
72万 7425元/㎡
70万 8362元/㎡
71.56万 5599元/㎡
70万 8362元/㎡
70万 7540元/㎡
69.8万 7960元/㎡
68万 6089元/㎡
69万 7900元/㎡
客厅
客厅
客厅
卧室
卧室
卧室
卧室
卧室
卧室
厨房
卫生间
阳台
阳台
户型图
房价走势
本房源单价
5397.46元/㎡环比↑19.44%
小区成交均价
5887.53环比↑4.67%
商圈均价
5778.17元/㎡环比↑0.26%
(三一街区) 楼盘问答

重要风险提示
本站旨在为广大用户提供更丰富的信息,但由于部分信息通过技术手段生成,部分信息由第三方提供,我们持续通过技术和管理手段提升信息的准确度,但我们无法确保信息的真实性、准确性和完整性。
1、关于参考户型图
本站呈现的户型图为平台根据已拍摄的VR内容/数据绘制而成的非标准的参考户型图,其中户型结构及房屋面积并非按国家标准进行的测绘专业活动取得,我们会持续改进技术,但因为设备、技术、摄影师人为操作偏差等原因参考户型图与真实现状一定存在差异,我们无法保障户型图准确性和差异率,户型图仅供参考,不应作为您交易的决策依据,房屋面积的准确信息请您与房源业主核实,并请以产权证明或您委托的专业机构测量结果为准。
2、关于房屋装修情况
本站房源图片、VR效果图、视频等呈现出的房屋装修情况可能因为拍摄时间、拍摄角度等原因和实际场景存在出入,仅供参考,不应作为您交易的决策依据,请以您在看房时房源的实际装修情况为准。
3、关于房屋装修情况
本站展示的房源信息、交易信息等(包括但不限于房屋面积、所在楼层、房屋朝向、房屋用途、建成年代、建筑结构、供暖方式、抵押信息、交易权属)由经纪人提供,仅供参考不应作为您交易的决策依据,房源的准确信息请您与房源业主核实,并以房本信息、房屋实际情况、您签订房屋买卖合同中被露的信息为准。
4、关于房屋周边配套等
房源介绍中的周边配套、在建设施、规划设施、地铁信息、绿化率、得房率等内容均系第三方提供,仅供参考不应作为您交易的决策依据,房屋周边配套请您与房源业主及主管部门核实,并以房本信息、房屋实际情况、您签订房屋买卖合同中披露的信息为准。
5、关于距离
房源介绍中与距离相关的数据均来源于百度地图。
免责声明:本站旨在为广大用户提供更多信息服务,不声明或保证所提供信息的准确性和完整性。 页面所载内容及数据仅供用户参考和借鉴,最终以开发商或者经纪人实际公示数据为准, 用户因参照本站信息进行相关交易所造成的任何后果与本站无关。如在本站看到有虚假信息或者信息错误, 您可以点击相应的举报按钮或者拨打举报电话:4006622117
备注:本站所有涉及面积或者带有单位“㎡”的信息都是“建筑面积”,所有的售价和均价、月租金等,都是参考价格。
湖南省长沙市芙蓉区世茂环球金融中心20、21、29楼
全国服务监督热线:4006622117
快捷登录














以上户型图为象盒找房提供的房源参考图,其中户型结构及面积并非按国家专业测绘活动所得,与真实现状及产权证明呈现的面积存在差异,仅供参考,请以产权证明或专业机构测量结果为准。
微聊
微聊